Dal 30/12/2025 sarà rinnovato il portale SUE per la gestione delle pratiche edilizie Leggi di più

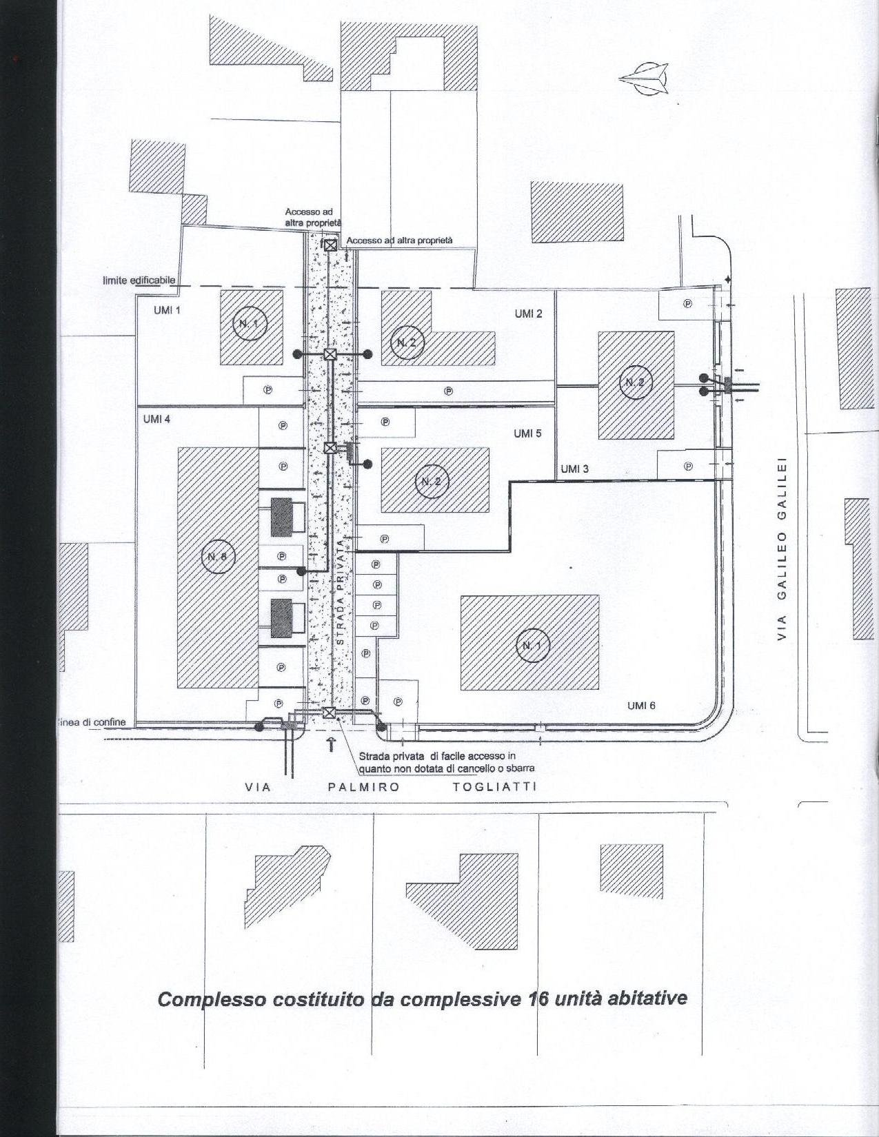
Piano di lottizzazione di iniziativa privata UTOE 4 - Uliveto Terme - Comparto 1 - Adozione ex art. 111 L.R. 65/2014

Piano di lottizzazione di iniziativa privata UTOE 4 - Uliveto Terme - Comparto 1 - Adozione ex art. 111 L.R. 65/2014
Data:

01/01/2020

Data di protocollazione:

01/01/2020

Numero di protocollo:

doc_urbanistica_14

Documenti

1 parere preventivo toscana energia (File image/jpeg 203,85 kB)
1 parere preventivo acque 1 (File image/jpeg 241,38 kB)
1 parere preventivo acque 2 (File image/jpeg 247,25 kB)
1 parere preventivo enel 1 (File image/jpeg 280,00 kB)
1 parere preventivo enel 2 (File image/jpeg 196,00 kB)
1 parere preventivo enel 3 (File image/jpeg 333,73 kB)
1 parere preventivo enel 4 (File image/jpeg 278,91 kB)
1 parere preventivo telecom 1 (File image/jpeg 309,51 kB)
1 parere preventivo telecom 2 (File image/jpeg 318,07 kB)
1 parere preventivo telecom 3 (File image/jpeg 255,63 kB)
4 relazione tecnica (File pdf 195,93 kB)
5 norme tecniche 2016 (File pdf 237,67 kB)
6 computo metrico (File pdf 117,05 kB)
7 1a tav.0 planimetria (File pdf 353,52 kB)
9 1a tav 2 planivolumetrico (File pdf 1,38 MB)
10 1a tav. 3 progetto (File pdf 1,82 MB)
12 1a tav.5 smaltimento liquami (File pdf 566,84 kB)
14 1b tav. 0 planimetria (File pdf 353,52 kB)
16 1b tav.2 planivolumetricol (File pdf 245,51 kB)
17 1b tav.3 progetto (File pdf 217,05 kB)
19 1b tav.5 smaltimento liquami (File pdf 340,99 kB)
Garante 0 (File pdf 58,36 kB)
Relaz certif rup (File pdf 56,69 kB)
Schema convenzione definitiva (File pdf 111,18 kB)

Unità organizzativa responsabile

Urbanistica Edilizia Privata

Pianificazione urbanistica - Titoli per interventi di edilizia privata - Controllo, vigilanza e repressione abusi edilizi

Formati disponibili

PDF

Licenza di distribuzione

Creative Commons Attribution 4.0 International (CC BY 4.0)

Date

Data di inizio validità/efficacia

01/01/2020

Data di inizio pubblicazione

01/01/2020

Ulteriori informazioni

Identificativo del documento

doc_urbanistica_14

Ultimo aggiornamento: 28/04/2023 13:50

Sito web e servizi digitali OpenCity Italia distributed by OpenCity Labs · Accesso redattori sito